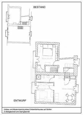
Treppenplanung, Sizilien

Bestand und Entwurf

Dritte Ebene und Dachgeschoss