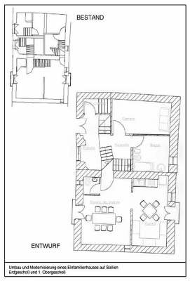
Treppenplanung, Sizilien

Bestand und Entwurf

Eingangsbereich mit erster und zweiter Ebene